Пластиковые окна и двери REHAU - официальный партнер в Москве

+7 (495) 278-09-66 Режим работы: ежедневно с 10:00 до 19:00
Калькулятор

Сколько камер должно быть в пластиковом окне?

REHAU Grazio фото
REHAU Grazio фото
REHAU Grazio фото

При заказе остекления большинство заказчиков путают камерность ПВХ-профиля и стеклопакета. Эти понятия имеют принципиальное различие. Поэтому, чтобы подойти к заказу со знанием дела, сегодня мы выясним, какое бывает количество камер в профиле окна и на что влияет этот показатель. Такая информация позволит легко определить, сколько камер лучше для конкретного объекта и условий эксплуатации.

Что такое камера в пластиковом окне: ее функции и особенности

Производители классифицируют профильные системы именно по этому показателю. Камеры в профиле – это пространство между ребрами жесткости, которые находятся в раме. Эти промежутки изолированы друг от друга, поэтому хорошо сохраняют температуру. В данном случае воздух играет роль теплоизоляции.

Каждый отсек выполняет определенную функцию. Например, в стандартном трехкамерном профиле это выглядит так:

  • первая – отводит влагу в виде конденсата;
  • вторая – для установки армирующего элемента;
  • третья – для монтажа фурнитуры.

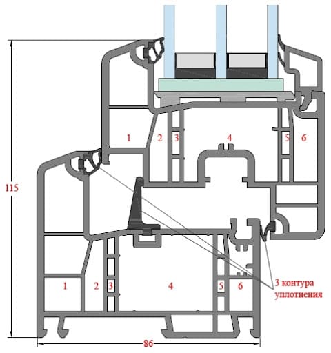
Число отсеков зависит от глубины профиля. Если она составляет 60 мм, то количество секций будет равно трем, при 70 мм – пяти, при 86 мм – шести. Поскольку такие секции в готовой конструкции скрытые, определить их можно только по образцу в разрезе или путем замера глубины профиля.

Сколько камер должно быть в пластиковом окне

Известный производитель Rehau, чьи профильные системы признаны лучшими, предлагает следующие решения:


REHAU Grazio фото

  • Трехкамерные. Система с минимальным количеством отсеков, о назначении каждого из них информация приведена выше. Ее глубина может быть 58 и 60 мм, для установки подходит двух- или трехкамерный стеклопакет.

REHAU Grazio фото

  • Четырехкамерные. По шумоизоляции и теплоизоляции не очень отличается от предыдущей конструкции. Но, для установки в частном доме лучше выбрать 4 секции, при условии, что ширина последующего отсека будет больше.


REHAU Grazio фото




REHAU Grazio фото

Сколько камер в окнах ставят в квартиру

Количество секций в профильной системе зависит от требований к температурному режиму в конкретном помещении и климата в регионе. Для дачи, квартиры с окнами во двор, неотапливаемого балкона или лоджии будет достаточно трех секций.

Четырехкамерные часто используют для остекления коттеджей и загородных домов, которые защищены от ветра. На открытых участках, вблизи водоемов лучше использовать пятикамерную конструкцию, которая позволяет хорошо сэкономить на отоплении. В любом случае, нужно учитывать ширину профильной системы, от которой во многом зависит степень теплоизоляции

REHAU Grazio фото
REHAU Grazio фото
REHAU Grazio фото
Рейтинг качества
Окна цена
качество
Установка цена
качество
Материалы цена
качество
Профили
Дилеры

Турция, Германия
Перекупщики

Германия
Умные окна

Германия
Частные мастера

Турция, Китай
Мегабренды

Германия
Контроль качества
Вы можете быть уверены в корректности комплектации и идеальном внешнем виде изделий.
Европейские технологии
При монтаже нами используются специальные мембранные ленты, улучшающие свойства ваших окон.
Бесплатный замер
Умный инженер приедет в удобное для вас время и поможет со всеми интересующими вас вопросами.
Гарантия до 10 лет
Вы получаете гарантию до 10 лет на продукцию и все виды монтажных работ.
Умный сервис
По вашему желанию бесплатно отрегулируем ваши окна в течение года после установки.
Окна Рехау - скидка до 25%

Умное предложение

Закажите комплект услуг
"Умная квартира"
и получите экономию до 25%!

Успей заказать по акции, осталось 2 пакета из 10!

В комплект
"Умная квартира" входят:
  • Комплект окон под вашу квартиру
  • Фурнитура ROTO
  • Подоконники, Теплые откосы, Отливы
  • Доставка, Демонтаж, Монтаж
  • Качество, Улыбка, Хорошее настроение!
Цените каждую минуту?
Воспользуйтесь нашей новой услугой
Дистанционный замер!
Узнать подробнее
Заполняя форму, вы принимаете условия

Пользовательского соглашения

Подберем окна
за 1 минуту

Пройти тест